









Donaustraße 43, 12043 Berlin
173 m² Gastronomiefläche im Erdgeschoss – Ideal für Cafe/Bistro/Tagesbar in lebendiger Berliner Lage
Objekt-ID:
4722224
Beschreibung
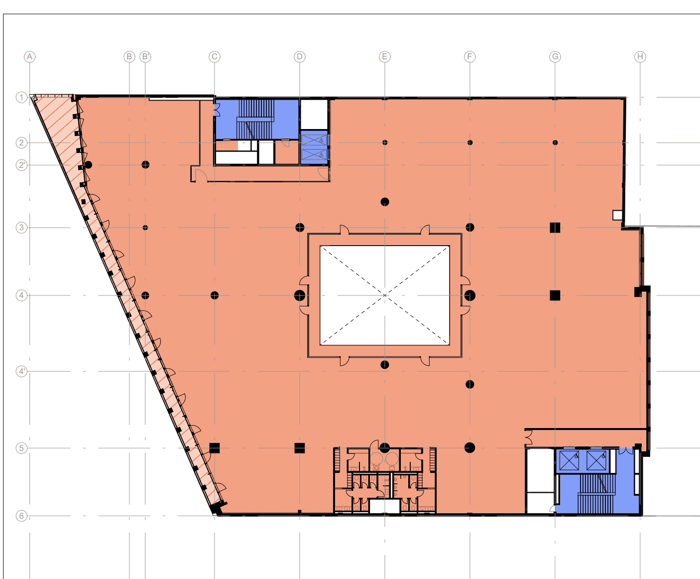
Die angebotene Gewerbeeinheit umfasst eine großzügige Gastronomiefläche von ca. 173 m² und befindet sich im Erdgeschoss eines gepflegten Gebäudes. Die Fläche eignet sich ideal für Cafes, Bistros oder Tagesbars.
Dank der klaren Grundrissstruktur lässt sich die Fläche funktional in Gastraum, Küchenbereich sowie Nebenflächen aufteilen. Die Größe der Einheit ermöglicht eine flexible Gestaltung und Anpassung an unterschiedliche gastronomische Konzepte – vom klassischen Restaurant über Bistro- oder Cafébetrieb bis hin zu modernen Food-Konzepten.
Die Erdgeschosslage sorgt für eine gute Sichtbarkeit und eine angenehme Erreichbarkeit für Gäste. Insgesamt handelt es sich um eine vielseitig nutzbare Gewerbefläche mit großem Potenzial in einer gefragten Berliner Lage.
Die angebotene Gewerbeeinheit umfasst eine großzügige Gastronomiefläche von ca. 173 m² und befindet sich im Erdgeschoss eines gepflegten Gebäudes. Die Fläche eignet sich ideal für Cafes, Bistros oder Tagesbars.
Dank der klaren Grundrissstruktur lässt sich die Fläche funktional in Gastraum, Küchenbereich sowie Nebenflächen aufteilen. Die Größe der Einheit ermöglicht eine flexible Gestaltung und Anpassung an unterschiedliche gastronomische Konzepte – vom klassischen Restaurant über Bistro- oder Cafébetrieb bis hin zu modernen Food-Konzepten.
Die Erdgeschosslage sorgt für eine gute Sichtbarkeit und eine angenehme Erreichbarkeit für Gäste. Insgesamt handelt es sich um eine vielseitig nutzbare Gewerbefläche mit großem Potenzial in einer gefragten Berliner Lage.
Die angebotene Gewerbeeinheit umfasst eine großzügige Gastronomiefläche von ca. 173 m² und befindet sich im Erdgeschoss eines gepflegten Gebäudes. Die Fläche eignet sich ideal für Cafes, Bistros oder Tagesbars.
Dank der klaren Grundrissstruktur lässt sich die Fläche funktional in Gastraum, Küchenbereich sowie Nebenflächen aufteilen. Die Größe der Einheit ermöglicht eine flexible Gestaltung und Anpassung an unterschiedliche gastronomische Konzepte – vom klassischen Restaurant über Bistro- oder Cafébetrieb bis hin zu modernen Food-Konzepten.
Die Erdgeschosslage sorgt für eine gute Sichtbarkeit und eine angenehme Erreichbarkeit für Gäste. Insgesamt handelt es sich um eine vielseitig nutzbare Gewerbefläche mit großem Potenzial in einer gefragten Berliner Lage.
Weitere Immobilien

Immobilienvermittlung & Expansionsberatung mit Fokus, Leidenschaft und digitaler Expertise.

Immobilienvermittlung & Expansionsberatung mit Fokus, Leidenschaft und digitaler Expertise.
